Floor Plans
Rooms
-
Bluewater :Bedroom 1 sleeps 2, with room for 2 more at no extra charge Bedroom 1
This room has a US king size bed (6’ 4” x 6’ 8”), an ensuite shower room with a large walk-in shower and on the balcony, a 24 carat gold leaf hammock bath.
Optional: 2 extra guests can be accommodated on a Chesterfield sofa bed at no extra charge.
Sleeps 2+2. -
Bluewater - Bedroom 2: Spacious, with an incredible sense of calm Bedroom 2
This room has a US king size bed (6’ 4” x 6’ 8”), and uses the main bathroom.
Optional: 2 extra guests can be accommodated on a Chesterfield sofa bed at no extra charge.
Sleeps 2+2. -
Bluewater: Bedroom 3 sleeps 2 and has room for 2 extra guests at no extra charge Bedroom 3
This room has a US Queen size bed (5’ x 6’ 8”) and an ensuite shower room.
Sleeps 2. -
Bluewater: Bedroom 4: The bedrooms are all so restful; sleep should come easy Bedroom 4
This room has a US Queen size bed (5’ x 6’ 8”) and uses the main bathroom opposite, with a free standing bath and a walk-in shower.
Sleeps 2. -
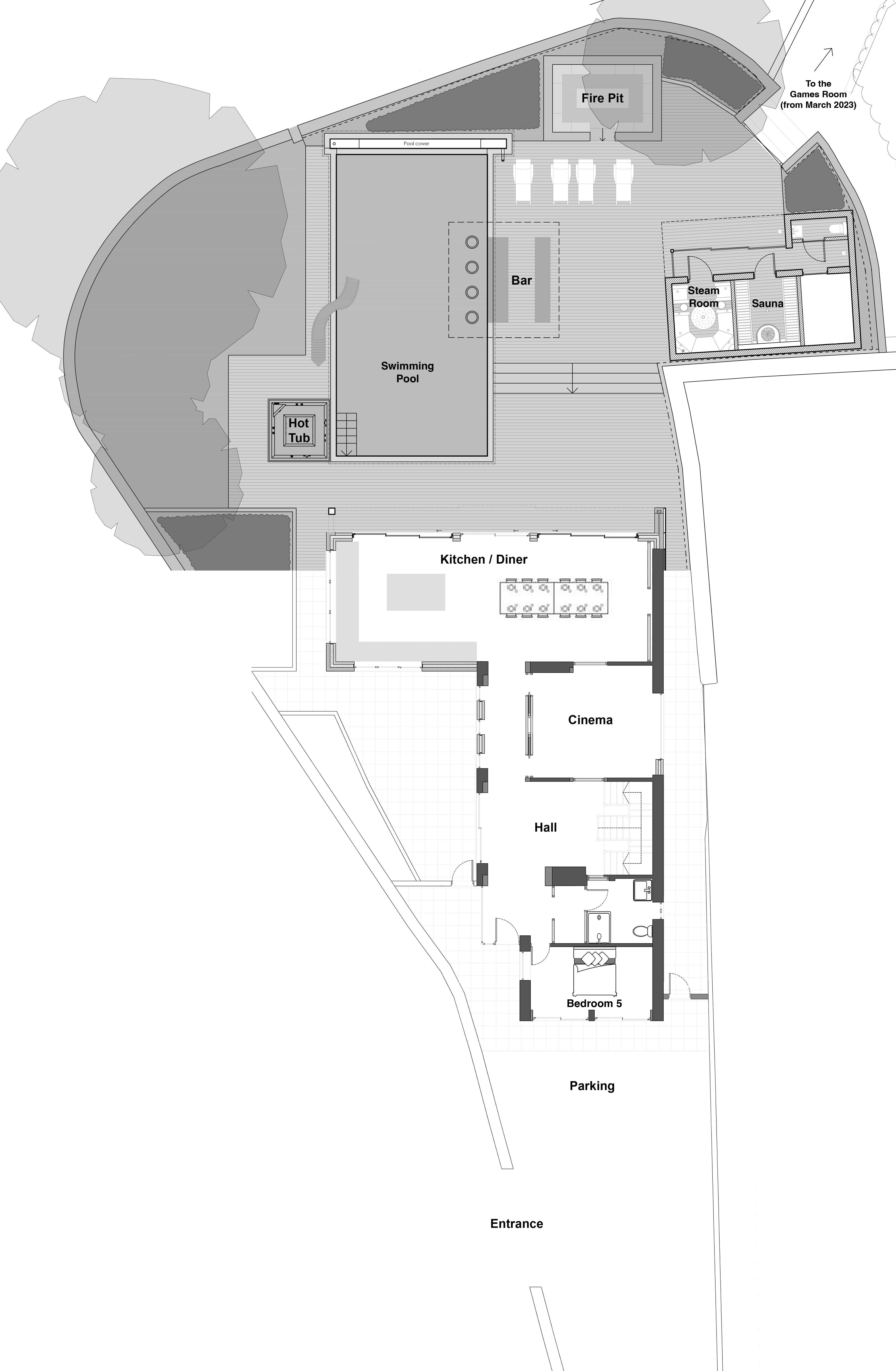
Bluewater - Bedroom 5 is on the ground floor and sleeps 2 Bedroom 5
This is an access friendly room on the ground floor. It has a UK double bed and right next door is a walk-in wet room.
Sleeps 2. -
Bluewater: Such a slick and stylish kitchen! Kitchen
2 highchairs are available. If requested these will be left in the kitchen.
-
Bluewater: For luxury large group holidays in Somerset Equipment
This property owner offers the following items. If required these can be selected while doing your bed configurations within your booking.
2 x Travel Cots (age 2 yrs and under)
2 x Highchairs