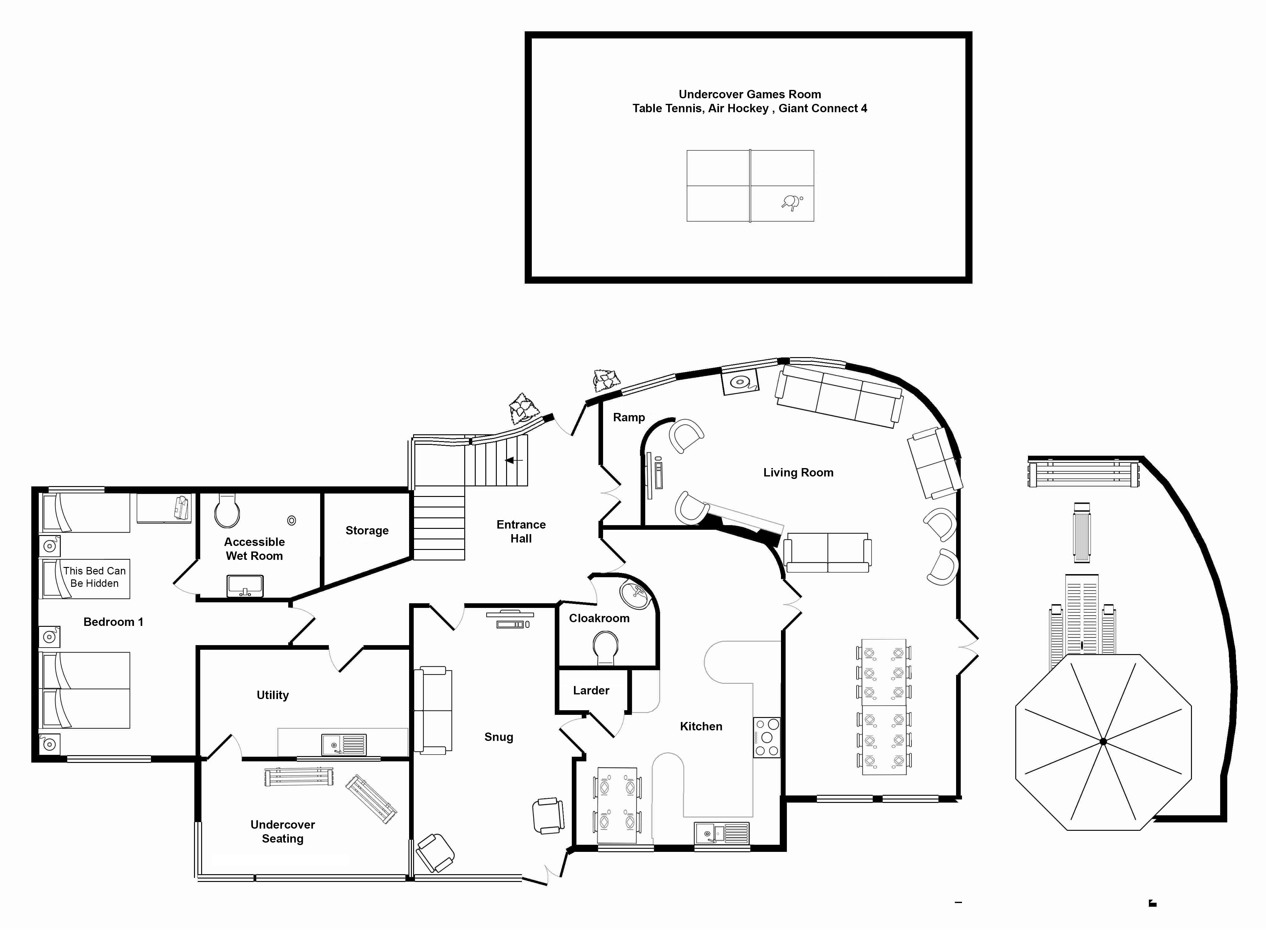
Floor Plans
Rooms
-
Beyond The Woods - Bedroom 1 is on the ground floor and can sleep 4 Bedroom 1
This is on the ground floor and is access friendly with zip and link beds (super king or twin), a single and an extra guest bed (not charged). It has an ensuite wet room.
Sleeps up to 4. -
Beyond The Woods - Bedroom 2 has the most incredible views - what a start to the day! Bedroom 2
This is the largest room and is great for a family. It has zip and link beds (super king or twin) and an ensuite shower room.
Optional: 2 extra guest beds at an additional charge each (extra charge - see our Extras page) - these are 2ft 6" singles.
Sleeps 2+2. -
Beyond The Woods - Bedroom 3 can be a super king or twin room Bedroom 3
This is a large room with zip-and-link beds (super king or twin). It has use of the family bathroom right opposite.
Sleeps 2. -
Beyond The Woods - Bedroom 4: Like all bedrooms, zip and link beds mean super king or twin Bedroom 4
This room has zip and link beds (super king or twins) and an en-suite shower room.
Sleeps 2. -
Beyond The Woods - Bedroom 5 has zip and link beds and an ensuite shower room Bedroom 5
This room has zip and link beds (super king or twins) and en-suite shower room.
Sleeps 2. -
Beyond The Woods - Bedroom 6: Calm and restful, like all the bedrooms; you should sleep well! Bedroom 6
This room has zip and link beds (super king or twins) and an en-suite shower room.
Sleeps 2. -
Beyond The Woods - The light and airy dining room Dining Room
3 highchairs are available. If requested these will be left for you in the dining room.
-
Beyond The Woods - This is a holiday house for all ages - great for family celebrations Equipment
This property owner offers the following items. If required these can be selected while doing your bed configurations within your booking.
3 x Highchairs
3 x Travel Cots (age 2 yrs and under)
1 x Toilet Raiser Seat
1 x Shower Chair
1 x Pair of Super-Grip Handles